PEDRAFITA

11

REFORMA INTEGRAL MASIA CATALANA, LA SELVA DEL CAMP

PEDRAFITA11 - 1 - 2.17 Arquitectura
PEDRAFITA11 - 3 - 2.17 Arquitectura
PEDRAFITA11 - 5 - 2.17 Arquitectura
PEDRAFITA11 - 7 - 2.17 Arquitectura
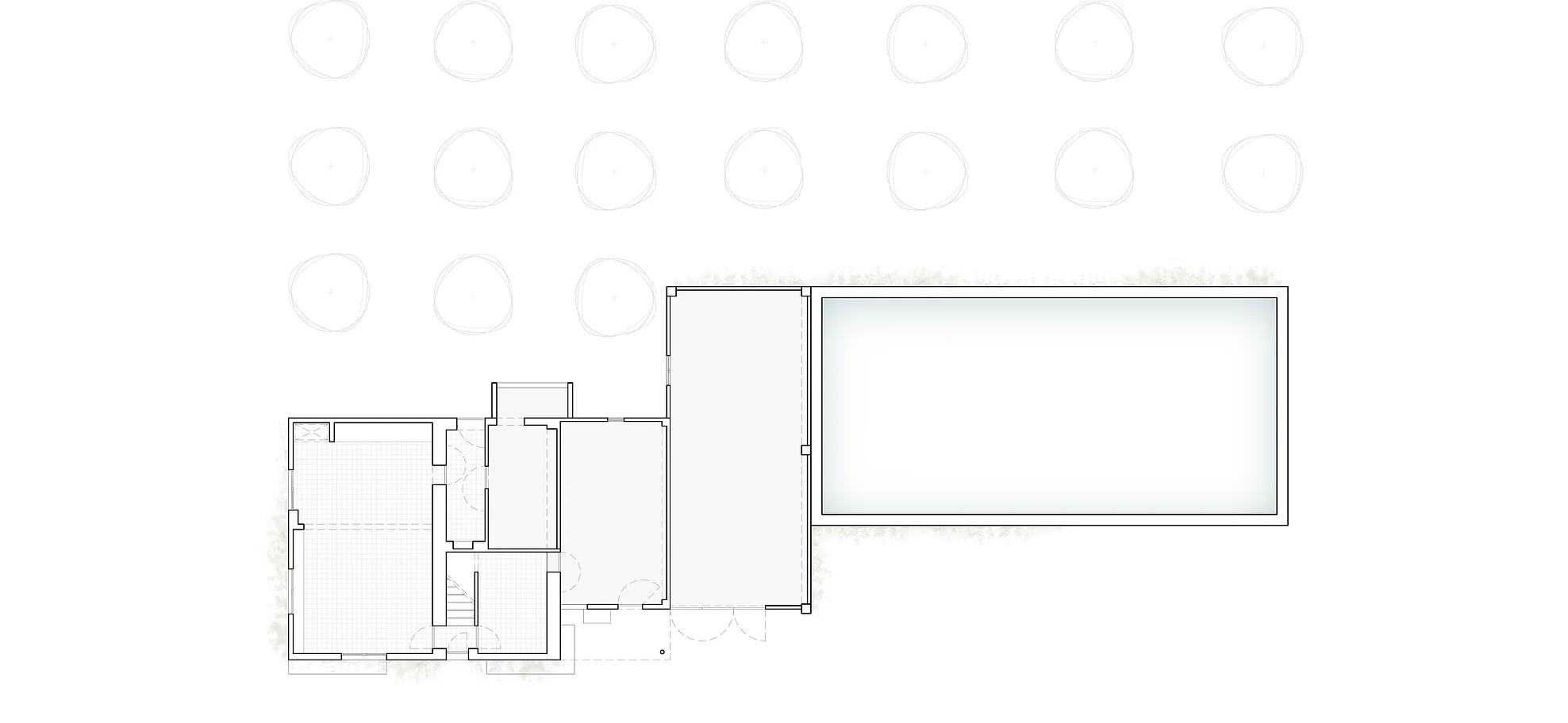
PLANTA BAIXA PROPOSTA
PEDRAFITA11 - 9 - 2.17 Arquitectura
PLANTA PRIMERA PROPOSTA
PEDRAFITA11 - 11 - 2.17 Arquitectura
PLANTA BAIXA ESTAT ACTUAL
PEDRAFITA11 - 13 - 2.17 Arquitectura
PLANTA PRIMERA ESTAT ACTUAL
2.17 Arquitectura - Logo Header

C/Martí d’Ardenya nº6 – 43001 – Tarragona

2.17 ARQUITECTURA © 2026

REFORMA INTEGRAL MASIA CATALANA, LA SELVA DEL CAMP